中野区の飛行機の防音対策

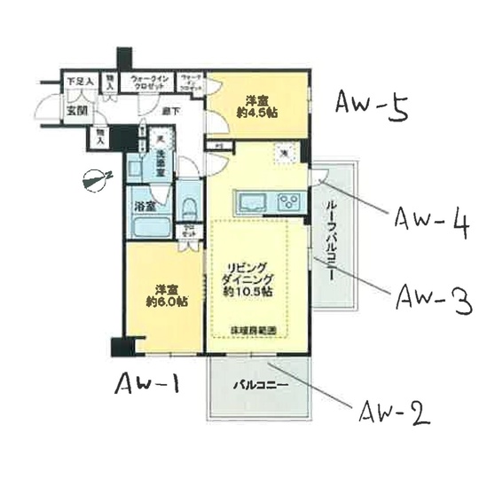
間取り紹介

中野区のマンションの窓に内窓を設置するリフォーム費用と

SIIの断熱リノベ補助金を活用した例を紹介します。

間取り:2LDK

交換窓数:5ヶ所

サイズ:①AW-1 1810mm×2000mm

    ②AW-2 1810mm×2000mm

    ③AW-3 1700mm× 2000mm

    ④AW-4 600mm×1830mm

    ⑤AW-5 1200mm× 1100mm

交換製品:YKKap かんたんマドリモ プラマードU (内窓)

     LOW-E複層ガラス

総額費用:450,560円

補助金額:119,000

実質支払:331,560

 中野区は1050m上空を飛行するエリアです。

騒音レベルは、61~71㏈の騒音状況が予想されます。通常の話し声~街路沿いの住宅街の騒音が予想されます。

 

中野区 窓補助金 騒音対策
窓見積り    
シミュレーション

サイズを入力するだけで簡単に見積りが行えます

ただいま準備中
内窓見積り   
シミュレーション

サイズを入力するだけで簡単に見積もりが行えます

友だち追加
パソコン|モバイル
ページトップに戻る
...