2025年窓のリフォームで使える補助金って何?     2025年1月5日

窓リフォームで使える補助金は、5っ!

窓リフォーム補助金の併用できる?できない?

補助金の併用はできます。

国の補助金1~4のうち1つ、4の減税制度と東京都または埼玉県と各自治体と併用可能です。

補助金使用例:

※注意※ 補助金申請は、事前申請?事後申請?

よし、さっそく窓のリフォームをしようと思ったあなた、ちょっと待って!

補助金申請は事前申請と事後申請があります。どちらの申請にしても、リフォーム前後の写真がまずは必要。そして対象の製品が施工できているかが大事なポイントです。まずは、リフォーム前に補助金の相談してからリフォーム工事をしましょう。

各自治体は、申請方法が様々なので必ず確認してからのリフォームを行いましょう。

【国】先進的窓リノベ事業

【リフォーム】窓の断熱

上限金額:200万円

補助額:ガラス5,000円~55,000円/箇所/、内窓:12,000~106,000円、窓交換(カバー工法):58,000円~266,000円/箇所

対象金額:補助金額の合計5万円以上で申請可能

対象製品:ガラス交換、内窓設置、外窓交換、ドア交換

対象者:リフォームする住宅の所有者等であること

【国】子育てグリーン住宅支援事業

【リフォーム】の窓・ドアの断熱リフォーム

上限金額:40~60万円

補助額:ガラス3000円~14,000円/箇所/、内窓、窓交換:17,000円~34,000円/箇所、ドア32,000~49,000円/箇所(2024年度の内容となります)

必須要件:①開口部の断熱改修②躯体の断熱改修③エコ住宅改修設備の設置のうち2つの工事を行うことが必須

対象金額:補助金額の合計5万円以上で申請可能

対象製品:ガラス交換、内窓設置、外窓交換、ドア交換、

対象者:リフォームする住宅の所有者等であること、子育て世帯以外も申請できます

 

見解:窓の工事だけでは必須要件とならない&補助金額が低い為、2025年度は先進的窓リノベ対象の製品でリフォームが◎

【国】既存住宅における断熱リフォーム支援事業

【断熱リフォーム】

 1.対象すべての窓

補助費用:1/3以内

上限金額:戸建て120万円、集合住宅15万円

対象製品:ガラス、窓、断熱材、玄関ドア

 2.居間だけ断熱

補助費用:1/3以内

上限金額:戸建て120万円、集合住宅15万円

対象製品:窓、玄関ドア

必須項目:居間の窓は必ず改修すること

 

【国】省エネリフォーム減税制度

【所得税の減税】

工事要件:すべての居室の全ての窓の断熱改修が必須、改修部位の省エネ性能がいずれもへいせい28年省エネ基準相当に新たに適合することとなる必要があります

工事費:50万円超え250万円まで

補助金等:差し引く

控除金額:25万円

床面積:改修後50㎡以上

減税期間:居住開始1年のみ

 

【固定資産税の減税】

工事要件:すべての居室の全ての窓の断熱改修が必須

築年数:平成20年1.1以前から所有する家屋

工事費:50万円超え

補助金等:差し引く

控除金額:固定資産税補1/3

床面積:改修後50㎡以上280㎡以下

減税期間:工事翌年度1年のみ

 

【東京都】災害にも強く健康にも資する断熱・太陽光住宅普及拡大事業

【高断熱窓】

補助率:1/3

上限:100万円/戸

想定件数:60,000戸

 

【断熱ドア】

補助率:1/3

上限:16万円/戸

想定件数:50,000戸

 

【断熱材】

補助率:1/3

上限:100万円

 

【高断熱浴】

補助率:1/3

上限:9.5万円

補助金を活用したリフォーム事例

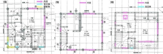
3階建て戸建てのリフォーム事例

戸建て 3階建ての補助金を活用したリフォーム金額事例を紹介。

同じ窓の内容でリフォームをした時の【次世代建材】と【断熱リノベ】の補助金額の違いをご紹介します。

 

補助金 断熱リフォーム 次世代省エネ建材
内容 窓すべて 窓すべて、トイレの壁に断熱材、調質建材
リフォーム費用総額 1,102,700円 1,362,700円
補助金額 189,000円 681,420円
実質支払い 913,700円 681,280円

 

なんと次世代建材の方が、工事費は26万円高いですが、補助金が約50万円多くもらえて、実質支払い金額が少なくなります。

【断熱リフォーム】より、【次世代建材】を活用すると232,420円安くなります。リフォーム場所が多いのに、金額は安く、住まいが快適になります。

 

調湿建材は、LIXILのエコカラットが有名です。壁に設置するだけで部屋を快適な湿度に保つので過ごしやすくなります。

自宅で過ごす時間が増えている方には、おススメのリフォームなので、まずは、どのくらい費用が掛かるのか?補助金がもらえるのか?

騒音対策できるのか?断熱対策できるのか?お気軽にお問合せください。

補助金申請の流れ

補助金の申請は、事前申請と事後申請と2種類あります。事後申請は工事後に申請を行うだけです。先進的窓リノベや子育てグリーン住宅は、事後申請となります。

事前申請の場合は、申請から交付決定までに1ケ月前後かかるので、お時間に余裕をもって申し込みください。

また、各自治体の申請は、細かく要件が異なるので、必ず自治体へご確認ください。

問合せの流れ

まずは、オンライン見積もりをご利用ください。手順は以下をご覧ください。

パソコン|モバイル
ページトップに戻る
...